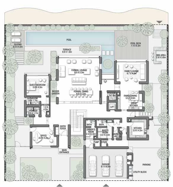
7 BEDROOMS + FORMAL AND FAMILY LOUNGES + OFFICE + ROOF LOUNGE AND TERRACE

4,537 sq. ft
Ground Floor
3,534 sq. ft
First Floor Area
1,488 sq. ft
Second Floor Area
11,222 sq. ft
Total Area

Available Type

Location

The biggest artificial Deepwater harbor of Jebel Ali has quick access to key locations in the surrounding neighborhood.

Video

Nakheel Specialist

Questions ?

Phone

Register your interest

Projects

Available Projects

0 results